招商热线: 136-95155-090 24小时电话咨询服务
空气能热泵专业研发制造商 上万工程案例 美好生活,由我开始
当前位置:首页 - 空气源热泵采暖解决方案
住宅地板辐射采暖解决方案
时间:2018-01-09
工程概况
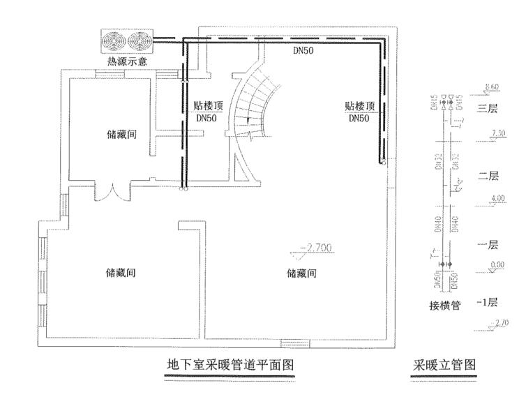
南京地区的某自建别墅,地上三层,地下一层。各层采暖面积:三层137平方米,二层214平方米,一层253平方米。计划用空气源热泵采暖机组供应40/45摄氏度热水,户内地板辐射采暖,室外设计温度下运行十四小时。已知370粘土砖外墙,中空玻璃。试分析确定地暖盘管间距,并试选空气源热泵机组容量。
解析:查《民用建筑供暖通风与空气调节设计规范》(GB50736-2012)附录A,南京供暖室外计算温度取-1.8摄氏度,室内设计温度取18摄氏度。
(1)东、西墙基本耗热量
房间外墙:4.8X2.7=13平方米;墙体的传热系数是1.56瓦/平方.k,墙体耗热量=1.56X13X(18+1.8)=402瓦
南窗墙基本耗热量
房间外墙:6.9X2.7=18.6平方米;窗体面积:(1.2+1.8+1.2)X1.5=6.3平方米;
墙体面积:18.3-6.3=12.3平方米;
墙体的传热系数是1.56瓦/平方.k,窗体的传热系数是2.4瓦/平方.k。
墙体耗热量=1.56X12.3X(18+1.8)=380W
窗体耗热量=2.4X6.3X(18+1.8)=299W
南窗墙耗热量
房间面积6.9X4.8=33平方米;屋顶的传热系数是1W/平方.K
屋顶耗热量=1X33X(18+1.8)=653W
冷风渗透耗热量(换气次数取0.5次/小时)
Q=0.28X1.01X1.29X0.5X2.7X33X(18+1.8)=322W
总耗热量:402+402+679+653+322=2458W
顶层热指标:2458/33=74瓦/平方米
每天供热14小时,末端散热能力:74X24/14=127瓦/平方。
(2)观察知非顶层房间中东南角的基本耗热量指标最大二层(非顶层)右下角房间的热指标:
(402+679+322)/33=43瓦/平方,每天供热14小时,末端散热能力74瓦/平方。
各层采暖面积:三层137平方米,二层214平方米,一层253平方米。
该建筑耗热量:137X74+(214+253)X43=30219W
别墅热指标:30219/(137+214+253)=50瓦/平方米
查取《地暖规程》GJG142-2012附录B1.1.1-1,的散热量表:
陶瓷地面,室内18摄氏度,空气源热泵水温平均42.5摄氏度,200mm的间距散热量是121瓦/平方米,基本满足要求。顶层以200mm间距为主,其他层可以采用250~300的间距(250mm的是115瓦/平方米,300mm的是108瓦/平方米)。
通过计算,出水温度45摄氏度的空气源热泵,在连续供暖的情况下,北方(室外-5.5摄氏度)370外墙,中空玻璃的自建房顶层主间距250mm(个别边角房间间距可取200mm)没有问题;非顶层同样情况下,主间距可取300mm(边角房间间距可取250mm)。
当然如果是间歇供暖,对应间距建议加密50mm。即顶层主间距可取200mm(个别边角房间间距可取150mm);非顶层主间距可取250mm(个别边角房间间距可取200mm)。室内地暖盘管末端散热余量较大,应增设温控装置。
根据1匹(马力)=735(瓦)及能效比(供热、制冷系数)公式ε=Q/W,假设室外采暖设计温度下(-1.8摄氏度)能效系数为3.5(和室外温度有关),每天供热14小时需要外机实际供热能力:
41098X(24/14)/(3.5X735)=27匹,可以选6台5匹空气源热泵采暖机组。运行时,可根据室内负荷确定所需启动的空气源热泵数量。
鉴于地暖垫层本身有较大的蓄热能力,足以维持室内的热舒适性,可不设蓄能水箱,采用空气源热泵机组直供。各层地暖平面如图。



